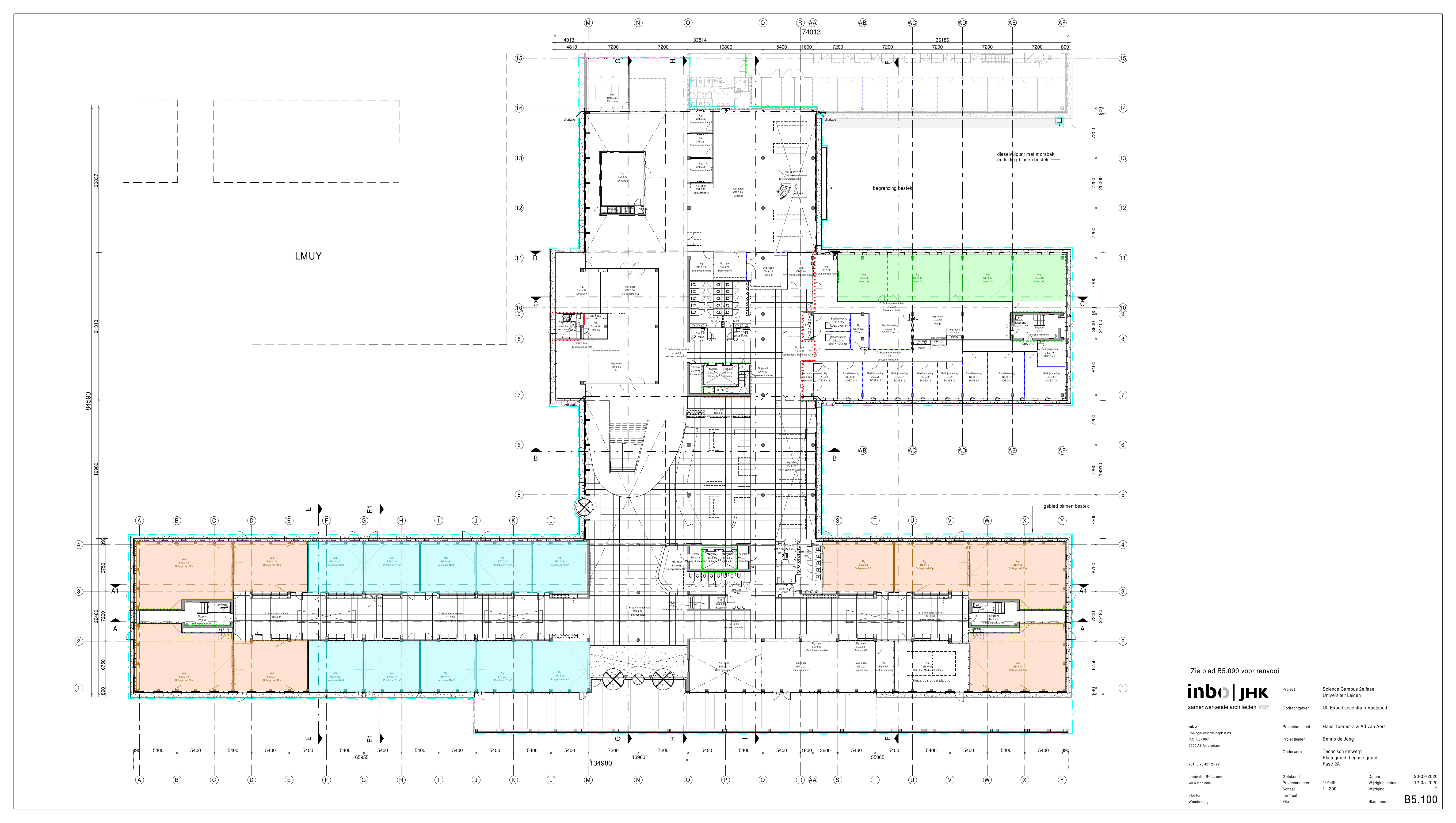
Maps of the floors

The floors of the building have different functionality and sections of the building are devoted to different institutes. The building is made such that borders between the different institutes are fluid, meaning that when the space requirements of institutes change, their office assignments can change accordingly without heavy constructual work. The lowest two floors are general purpose floors where lecture and meeting rooms are located. On the remaining floors the institutes are located.

Global overview

Detailed floor plans with annotations

On the ground and first floor meeting rooms and lecture rooms are located. Floors 2, 3, and 4 are for the institutes. On below maps colours indicate different functionality:
 Offices
 Meeting rooms
 Student rooms
 Labs
 Kaiser Lounge
 Lecture practica
 Lecture rooms

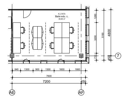
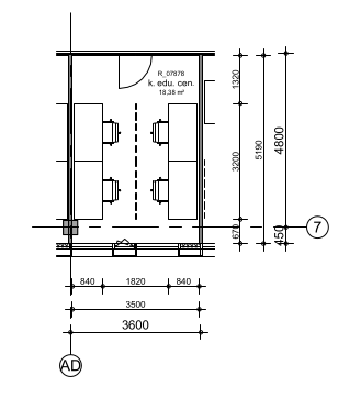
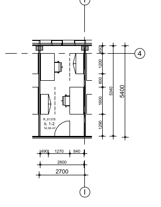
Layout of offices

As you may have seen on the floor plans we have different office sizes available. Depending on the planned assignments these offices can house 1, 2, 4 or (6 to) 8 persons. In addition, in the middle sections, we have located several meeting rooms and master offices. Here we will show how furniture can be placed in such offices. Mind you, these are suggestions. For your particular case we can adapt to your wishes.

Note: The mockup pictures show a gray wall where in real life windows will be present. The wall in the new building are magnetic and one or several panels can be equipped with foils to allow 'whiteboard' writing of 'blackboard' writing. The color scheme is soft to the eye (cloth colors and floor colors). Also other pieces of furniture will be available.

Observatory meeting rooms

LocationSize
BM.4.33 26 p
BW.3.33a 8 p
BW.3.34a 8 p
BW.4.17a 8 p
BW.4.18a 8 p
BW.4.33a 8 p
BW.4.34a 8 p


General Facilities

There are a view smaller meeting rooms located on the Observatory floors (see above), but no large ones, except for the Oort room that can house 26 persons. For more and larger meeting rooms and for all lecture rooms one needs to go to the general facilities areas on the ground and first floor. Most lecture and practica rooms are located on the ground floor, but the theater like lecture rooms on the first floor. Please inspect the floor plans above for locations. There is also a block of meeting rooms on the ground floor on the C-wing Eastern side.

Lecture rooms

LocationSize
BE.0.0832 p
BE.0.1040 p
BE.0.1780 p
BE.0.1880 p
BE.0.3140 p
BE.0.3240 p
BE.0.3980 p
BE.0.4080 p
BM.1.23100 p
BM.1.2670 p
BM.1.33100 p
CM.1.26200 p

Practica rooms

LocationSize
BW.0.0561 m2
BW.0.0661 m2
BW.0.0761 m2
BW.0.0861 m2
BW.0.1761 m2
BW.0.1861 m2
BW.0.1961 m2
BW.0.2061 m2
BW.0.2961 m2
BW.0.3061 m2

Meeting rooms

LocationSize
CE.0.0628 p
CE.0.0832 p
CE.0.1232 p
CE.0.1828 p
Lecture rooms are the normal type where there are rows of seats, optionally equipped with foldable table. The Practica rooms are rooms with (movable) tables that have either a fixed desktop or no desktop, but place and connectivity for laptop use. testtest

Proposed Seating Plan

This page currently has Restricted Access.